| 제수밸브실 일반도(3D) | 002-제수밸브실일반도(3D).pdf |
| 제수밸브실 적용기준 | 001-제수밸브실규격적용기준.dwg |
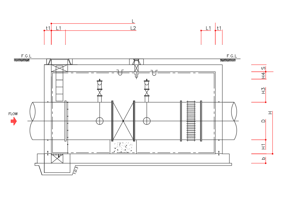
| 제수밸브실 2.4 x 1.2 D80 ~ 350 A형 | 003-제수밸브실(2.4×1.2,D80~350,A형) 일반도.dwg 004-2.4X1.2제수밸브실(D80~350,A형)일반구간 배근도.dwg 005-2.4X1.2제수밸브실(D80~350,A형)도로구간 배근도.dwg |
| 제수밸브실 3.4 x 1.2 D80 ~ 350 B형 | 006-제수밸브실(3.4X1.2,D80~350,B형)일반도.dwg 007-3.4X1.2제수밸브실(D80~350,B형)일반구간 배근도.dwg 008-3.4X1.2제수밸브실(D80~350,B형)도로구간 배근도.dwg |
| 제수밸브실 4.1 x 2.3 D400 ~ 700 | 009-제수밸브실(4.1X2.3,D400~700) 일반도.dwg 010-4.1X2.3(D400~700)제수밸브실 일반구간 배근도(1).dwg 011-4.1X2.3(D400~700)제수밸브실 일반구간 배근도(2).dwg 012-4.1X2.3(D400~700)제수밸브실 도로구간 배근도(1).dwg 013-4.1X2.3(D400~700)제수밸브실 도로구간 배근도(2).dwg |
| 제수밸브실 4.5 x 3.5 D800 ~ 900 | 014-제수밸브실(4.5X3.5,D800~900) 일반도.dwg 015-4.5X3.5(D800~900)제수밸브실 일반구간 배근도(1).dwg 016-4.5X3.5(D800~900)제수밸브실 일반구간 배근도(2).dwg 017-4.5X3.5(D800~900)제수밸브실 도로구간 배근도(1).dwg 018-4.5X3.5(D800~900)제수밸브실 도로구간 배근도(2).dwg |
| 제수밸브실 4.7 x 4.0 D1000 ~ 1100 | 019-제수밸브실(4.7X4.0,D1000~1100) 일반도.dwg 020-4.7X4.0(D1000~1100)제수밸브실 일반구간 배근도(1).dwg 021-4.7X4.0(D1000~1100)제수밸브실 일반구간 배근도(2).dwg 022-4.7X4.0(D1000~1100)제수밸브실 도로구간 배근도(1).dwg 023-4.7X4.0(D1000~1100)제수밸브실 도로구간 배근도(2).dwg |
| 제수밸브실 4.7 x 4.3 D1200 ~ 1350 | 024-제수밸브실(4.7X4.3,D1200~1350) 일반도.dwg 025-4.7X4.3(D1200~1350)제수밸브실 일반구간 배근도(1).dwg 026-4.7X4.3(D1200~1350)제수밸브실 일반구간 배근도(2).dwg 027-4.7X4.3(D1200~1350)제수밸브실 도로구간 배근도(1).dwg 028-4.7X4.3(D1200~1350)제수밸브실 도로구간 배근도(2).dwg |
| 제수밸브실 4.8 x 5.0 D1500 | 029-제수밸브실(4.8X5.0,D1500) 일반도.dwg 030-4.8X5.0(D1500)제수밸브실 일반구간 배근도(1).dwg 031-4.8X5.0(D1500)제수밸브실 일반구간 배근도(2).dwg 032-4.8X5.0(D1500)제수밸브실 도로구간 배근도(1).dwg 033-4.8X5.0(D1500)제수밸브실 도로구간 배근도(2).dwg |
| 제수밸브실 7.0 x 5.0 D1600 ~ 1650 | 034-제수밸브실(7.0X5.0,D1600~1650) 일반도.dwg 035-7.0X5.0(D1600~1650)제수밸브실 일반구간 배근도(1).dwg 036-7.0X5.0(D1600~1650)제수밸브실 일반구간 배근도(2).dwg 037-7.0X5.0(D1600~1650)제수밸브실 도로구간 배근도(1).dwg 038-7.0X5.0(D1600~1650)제수밸브실 도로구간 배근도(2).dwg |
| 제수밸브실 7.0 x 5.3 D1800 ~ 2000 | 039-제수밸브실(7.0X5.3,D1800~2000) 일반도.dwg 040-7.0X5.3(D1800~2000)제수밸브실 일반구간 배근도(1).dwg 041-7.0X5.3(D1800~2000)제수밸브실 일반구간 배근도(2).dwg 042-7.0X5.3(D1800~2000)제수밸브실 도로구간 배근도(1).dwg 043-7.0X5.3(D1800~2000)제수밸브실 도로구간 배근도(2).dwg |
| 제수밸브실 7.0 x 6.0 D2100 ~ 2300 | 044-제수밸브실(7.0X6.0,D2100~2300) 일반도.dwg 045-7.0X6.0(D2100~D2300)제수밸브실 일반구간 배근도(1).dwg 046-7.0X6.0(D2100~D2300)제수밸브실 일반구간 배근도(2).dwg 047-7.0X6.0(D2100~D2300)제수밸브실 도로구간 배근도(1).dwg 048-7.0X6.0(D2100~D2300)제수밸브실 도로구간 배근도(2).dwg |
| 제수밸브실 7.0 x 6.5 D2400 ~ 2600 | 049-제수밸브실(7.0X6.5,D2400~2600) 일반도.dwg 050-7.0X6.5(D2400~2600)제수밸브실 일반구간 배근도(1).dwg 051-7.0X6.5(D2400~2600)제수밸브실 일반구간 배근도(2).dwg 052-7.0X6.5(D2400~2600)제수밸브실 도로구간 배근도(1).dwg 053-7.0X6.5(D2400~2600)제수밸브실 도로구간 배근도(2).dwg |
| 제수밸브실 7.0 x 7.0 D2700 ~ 3000 | 054-제수밸브실(7.0X7.0,D2700~3000) 일반도.dwg 055-7.0X7.0(D2700~3000)제수밸브실 일반구간 배근도(1).dwg 056-7.0X7.0(D2700~3000)제수밸브실 일반구간 배근도(2).dwg 057-7.0X7.0(D2700~3000)제수밸브실 도로구간 배근도(1).dwg 058-7.0X7.0(D2700~3000)제수밸브실 도로구간 배근도(2).dwg |
댓글