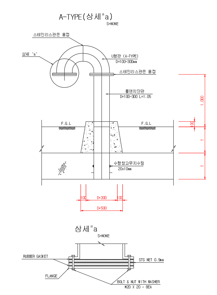
[자재] 환기구 U형 (구형) 게시일: 2024년 09월 09일업데이트 날짜: 2024년 09월 11일게시자: HG카테고리:01.강관, 02.주철관, 03.밸브실 표준도면 출처 : 수자원공사 환기구U형(구형).dwg HG heygaso.synology.me
댓글